Вентиляционные решетки (впускные и выпускные) используются для создания принудительной вентиляции шкафов управления и электрощитов с целью поддержания допустимого температурного режима для электронного оборудования.
В тех случаях, когда в шкафах управления или электрощитах смонтировано оборудование, выделяющее большое количество тепла (твердотельные реле, блоки питания, преобразователи частоты и т.д.), возникает необходимость создания принудительной вентиляции шкафа.
Вентиляторы серии KIPVENT кроме вентиляции и охлаждения дополнительно выполняют фильтрацию воздуха, нагнетаемого внутрь шкафа, что предотвращает скопление пыли и её попадание внутрь приборов.
Для управления вентиляторами KIPVENT рекомендуется применять термостаты MTK-CT0 или MTK-CT2.
Рекомендации по использованию вентиляторов и решеток серии KIPVENT:
- Используйте впускные и выпускные решетки с вентиляторами в тех случаях, когда температура воздуха снаружи ниже температуры внутри шкафа. В данном случае применение решеток и вентиляторов будет наиболее экономичным и эффективным.
- Необходимо использовать впускную решетку с вентилятором для нагнетания воздуха внутрь шкафа, а не наоборот. В этом случае из-за создаваемого в шкафу избыточного давления весь объем воздуха будет проходить исключительно через фильтрующие элементы.
- Устанавливать впускную решетку с вентилятором лучше в нижней трети шкафа, а выпускную решетку – в верхней трети (как можно выше), что позволит обеспечить естественную конвекцию воздуха, предотвратит скопление теплого воздуха выше вентилятора и исключит появление локальных зон перегрева.
- К впускным и выпускным решеткам шкафа необходимо обеспечить свободный доступ воздуха, чтобы излишнее тепло беспрепятственно могло поступать из шкафа в окружающую среду.
- Применяйте термостаты MTK-CT0 или MTK-CT2, чтобы вентилятор работал не постоянно, а включался только при необходимости. Это увеличивает срок службы вентилятора, а также снижает периодичность замены фильтров впускных и выпускных решеток.
Технические характеристики впускных решеток с вентиляторами серии KIPVENT:
| Параметр | Значение параметра | ||||
| Фото | ![]() |
![]() |
![]() |
![]() |
![]() |
| Модификация | KIPVENT-100.01.230 | KIPVENT-200.01.230 | KIPVENT-300.01.230 | KIPVENT-400.01.230 | KIPVENT-500.01.230 |
| Напряжение питания | 230 VAC | ||||
| Частота питающей сети | 50/60 Гц | ||||
| Электрическое подключение | Клеммные зажимы под винт | ||||
| Свободная подача воздуха | 28 м3/ч | 66 м3/ч | 120 м3/ч | 265 м3/ч | 600 м3/ч |
| Подача воздуха в комбинации с выпускной решеткой | 24 м3/ч | 55 м3/ч | 105 м3/ч | 230 м3/ч | 550 м3/ч |
| Макс. статическое давление | 29 Па | 61 Па | 86 Па | 115 Па | 176 Па |
| Поверхностная плотность фильтра | 150 г/м2 | ||||
| Класс фильтра (DIN 779) | G2 | ||||
| Уровень шума (DIN 45 635) | 39 дБА | 49 дБА | 49дБА | 56 дБА | 61 дБА |
| Тип подшипника | Подшипник качения | ||||
| Степень защиты | IP 54 | ||||
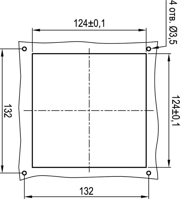
| Габаритные размеры | 116,5х116,5х55 мм | 150х150х70 мм | 204х204х103 мм | 255х255х115 мм | 322х322х130 мм |
| Размер выреза | 92,5х92,5 мм | 124х124 мм | 177х177 мм | 224х224 мм | 292х292 мм |
| Масса | 0,4 кг | 0,62 кг | 0,77 кг | 1,5 кг | 2,8 кг |
| Материал | Не поддерживающий горение ABS-FR пластик, категория воспламеняемости V0 согласно UL94 | ||||
| Цвет | RAL7035 | ||||
| Рабочая температура | -20...+60 °C | ||||
| Температура хранения | -40...+70 °C | ||||
Технические характеристики выпускных решеток серии KIPVENT:
| Параметр | Значение параметра | ||||
| Фото | ![]() |
![]() |
![]() |
![]() |
![]() |
| Модификация | KIPVENT-100.01.300 | KIPVENT-200.01.300 | KIPVENT-300.01.300 | KIPVENT-400.01.300 | KIPVENT-500.01.300 |
| Поверхностная плотность фильтра | 150 г/м2 | ||||
| Класс фильтра (DIN 779) | G2 | ||||
| Степень защиты | IP 54 | ||||
| Габаритные размеры | 116,5х116,5х22 мм | 150х150х24 мм | 204х204х30 мм | 255х255х30 мм | 320х320х30 мм |
| Размер выреза | 92,5х92,5 мм | 124х124 мм | 177х177 мм | 224,224 мм | 292х292 мм |
| Масса | 0,07 кг | 0,16 кг | 0,29 кг | 0,43 кг | 0,66 кг |
| Материал | Не поддерживающий горение ABS-FR пластик, категория воспламеняемости V0 согласно UL94 | ||||
| Цвет | RAL7035 | ||||
| Рабочая температура | -20...+60 °C | ||||
| Температура хранения | -40...+70 °C | ||||
Характеристики вентиляторов в координатах «давление/расход»:
Габаритные и установочные размеры впускных решеток с вентиляторами и выпускных решеток серии KIPVENT:
_x000D_
| Основные | |
|---|---|
| Производитель | ОВЕН |
| Страна производитель | Россия |
| Тип воздухораспределителя по конструкции | Решетка |
- Цена: от 37,39 руб.












